情報更新日:2025年09月22日/広告有効期限:なし
表示閲覧回数(過去30日間):64
お急ぎの方はお電話からお気軽にどうぞ!
0857-25-5351 営業時間 / 10:00~17:00 定休日 / 水曜日、日曜日
>物件詳細情報
| 基本情報 | |
|---|---|
| 物件番号 | 10007805099 |
| 店舗形態 | 事務所, 店舗, 店舗(飲食店可), 路面店舗 |
| オススメ業種 | 事務所, 物販関係, 軽飲食, サービス業 |
| 物件名 | 【湖山町東】エランビル |
| 物件の状態 | 空き |
| 引越し時期 | 即 |
| 契約形態と期間 |
普通契約期間:2年間 |
| 所在地・交通 | |
|---|---|
| 所在地 | 鳥取県鳥取市湖山町東1-403 |
| 交 通1 | 山陰本線湖山駅 徒歩2分 |
| 交 通2 | - |
| 賃料 | |
|---|---|
| 賃 料 | 80,300円(税込) |
| 敷 金 |
3ヶ月 |
| 共益費・管理費 | 5,500円(税込) |
| 精算方法 | 実費 |
| 礼 金 | 1ヶ月 |
| その他 | |
|---|---|
| 備考 | ■保証会社加入要 初回保証料:賃料の100%、更新保証料:賃料の10,000円/年 ■借家人賠償保険加入要 ■仲介手数料:賃料1.1ヶ月分(税込) ●事務所使用の場合、水道代込み |
| 建物 | |
|---|---|
| 建物構造 | 鉄骨造 |
| 建物階建て |
地上3階 |
| 施工年月 | 1993(平成5)年 02月 |
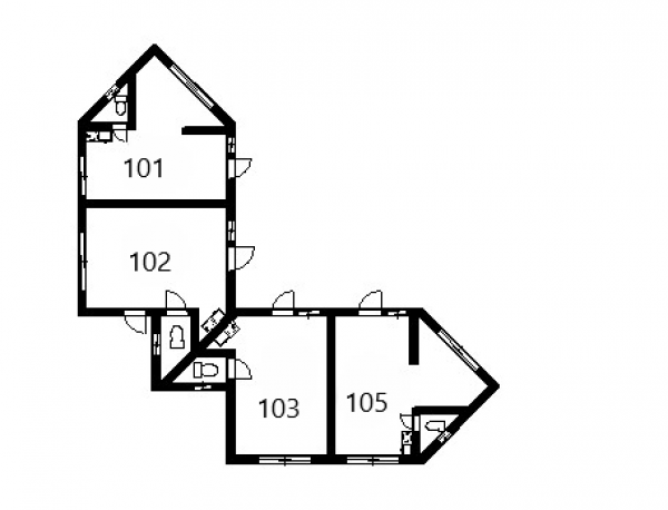
| 募集物件の階数 | 地上 1階 101号室 |
| 契約面積 | 33.32m2(10.08坪) |
| 用途地域 | 1種住居 |
| 設備 | |
|---|---|
| 水道 | 公営 |
| 下水道 | 浄化槽 |
| ガス | LPG |
| エレベータ | 無 |
| エアコン | 無 |
| トイレ | 有/専用 |
| 給湯室 | 無 |
| キッチン | 有/専用 |
| ネット環境 | 無 |
| 床仕様 | スケルトン |
| セキュリティ | 無 |
| 利用時間 | 24時間 |
| シャッター | 有/手動 |
| 照明設備 | 無 |
| 内装業者指定 | 無 |
| 駐車場 | |
|---|---|
| 状 況 | 空有 |
| 空き台数 | 1台 |
| 取引情報 | |
|---|---|
| 取引態様 | 代理 |
| 客付 | 可 |
この物件をチェックした人はこんな物件も見ています
- 飲食店跡。カウンター、お座敷、調理室があり厨房の持ち込みでオープン出来ます!

鳥取県鳥取市片原1-101-1
60m2(18.15坪)
66,000円(税込)
- 吉成消防署の横です。店舗前2台分駐車可能(賃料込み)

鳥取県鳥取市吉成-639-10
77.70m2(23.50坪)
121,000円(税込)
- 事務所におススメです♪駐車場2台は家賃込みです!(3台目以降:3,300円/台)

鳥取県鳥取市商栄町-110-4
100m2(30.25坪)
132,000円(税込)
- 2F事務所の1区画賃貸です。水道料、ガス代は共益費に含む。

鳥取県鳥取市南安長1-2-18
38.71m2(11.71坪)
48,400円(税込)
- 2Fの1部の賃貸です。階段クロス新調、2F共用部、2Fトイレ・キッチンをリフォームいたしました♪水道料共益費に含む(2Fを使用)。2022年6月室内リフォーム済み エアコン設置済み 駐車場6台程度 月額3,300円/台

鳥取県鳥取市南安長1-2-18
42.95m2(12.99坪)
58,300円(税込)
今日チェックした物件
お急ぎの方はお電話からお気軽にどうぞ!
0857-25-5351 営業時間 / 10:00~17:00 定休日 / 水曜日、日曜日


0857-25-5351


















0857-25-5351