情報更新日:2025年12月12日/広告有効期限:なし
表示閲覧回数(過去30日間):130
お急ぎの方はお電話からお気軽にどうぞ!
0857-25-5351 営業時間 / 10:00~17:00 定休日 / 水曜日、日曜日
>物件詳細情報
| 基本情報 | |
|---|---|
| 物件番号 | 10007805142 |
| 店舗形態 | 店舗(飲食店可), 店舗, 居抜店舗 |
| オススメ業種 | サービス業, 軽飲食 |
| 物件名 | 【栄町】栄町723ビル |
| 物件の状態 | 空き |
| 引越し時期 | 即 |
| 契約形態と期間 |
普通契約期間:2年間 |
| 所在地・交通 | |
|---|---|
| 所在地 | 鳥取県鳥取市栄町-723 |
| 交 通1 | 山陰本線鳥取駅 徒歩3分 |
| 交 通2 | - |
| 賃料 | |
|---|---|
| 賃 料 | 85,000円(税込) |
| 敷 金 |
1ヶ月 |
| 共益費・管理費 | 3,000円(税込) |
| 精算方法 | 実費 |
| 礼 金 | 1ヶ月 |
| その他 | |
|---|---|
| 備考 | ■保証会社加入相談 初回保証料:賃料総額の100%、更新保証料:10,000円/年 ■借家人賠償保険加入要 ■仲介手数料:賃料の1ヶ月分 |
| 建物 | |
|---|---|
| 建物構造 | 鉄骨造 |
| 建物階建て |
地上3階 |
| 施工年月 | 1977(昭和52)年 12月 |
| 募集物件の階数 | 地上 2階 B号室 |
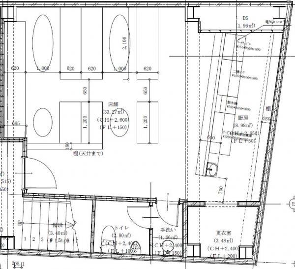
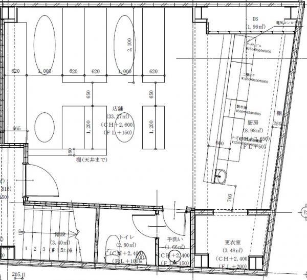
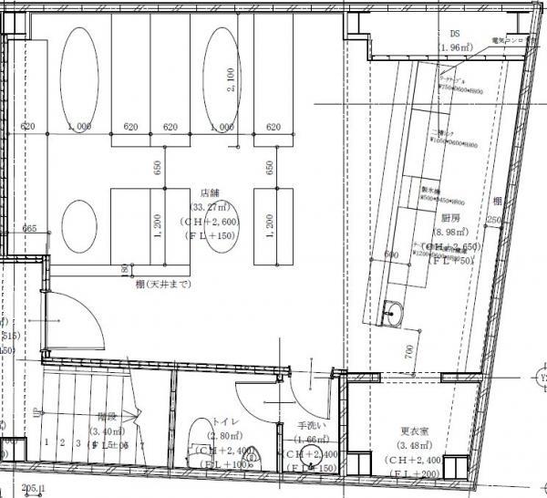
| 契約面積 | 50.19m2(15.18坪) |
| 専用使用面積 | 50.19m2(15.18坪) |
| 用途地域 | 商業地域 |
| 設備 | |
|---|---|
| 水道 | 公営 |
| 下水道 | 公共下水 |
| エレベータ | 無 |
| エアコン | 無 |
| トイレ | 有/専用 |
| 給湯室 | 無 |
| キッチン | 有/専用 |
| ネット環境 | 無 |
| 床仕様 | スケルトン |
| セキュリティ | 無 |
| 利用時間 | 24時間 |
| シャッター | 無 |
| 照明設備 | 有 |
| 内装業者指定 | 無 |
| 駐車場 | |
|---|---|
| 状 況 | 無し |
| 取引情報 | |
|---|---|
| 取引態様 | 媒介 |
| 客付 | 可 |
この物件をチェックした人はこんな物件も見ています
- 値下げしました!駐車場1台家賃込みです! 建物裏に専用駐車場がございます。 2023年4月末改装!トイレ・キッチン新調いたしました♪

鳥取県鳥取市南吉方1-90-1
36.88m2(11.16坪)
65,637円(税込)
- 値下げしました♪2023年4月末改装!エアコン・トイレ・キッチン新調いたしました♪駐車場1台家賃込みです! 建物裏に専用駐車場がございます。

鳥取県鳥取市南吉方1-90-1
49.16m2(14.87坪)
67,760円(税込)
- 値下げしました♪2023年4月末改装!エアコン・トイレ・キッチン(IHコンロ)新調いたしました♪駐車場1台家賃込みです! 建物裏に専用駐車場がございます。

鳥取県鳥取市南吉方1-90-1
44.92m2(13.59坪)
61,325円(税込)
- 値下げしました!2023年4月末改装!エアコン・トイレ・キッチン新調いたしました♪駐車場1台家賃込みです! 建物裏に専用駐車場がございます!

鳥取県鳥取市南吉方1-90-1
52.25m2(15.81坪)
72,710円(税込)
- 8坪のこじんまりとした事務所です。(トイレ、キッチンは共用)

鳥取県鳥取市職人町-29
27.84m2(8.42坪)
30,800円(税込)
今日チェックした物件
お急ぎの方はお電話からお気軽にどうぞ!
0857-25-5351 営業時間 / 10:00~17:00 定休日 / 水曜日、日曜日


0857-25-5351



















0857-25-5351