情報更新日:2025年09月01日/広告有効期限:なし
表示閲覧回数(過去30日間):22
お急ぎの方はお電話からお気軽にどうぞ!
0857-25-5351 営業時間 / 10:00~17:00 定休日 / 水曜日、日曜日
>物件詳細情報
| 基本情報 | |
|---|---|
| 物件番号 | 10007805296 |
| 店舗形態 | 事務所 |
| オススメ業種 | 事務所 |
| 物件名 | 【今町】住友生命鳥取ビル |
| 物件の状態 | 空き |
| 引越し時期 | 即 |
| 契約形態と期間 |
普通契約期間:2年間 |
| 所在地・交通 | |
|---|---|
| 所在地 | 鳥取県鳥取市今町1-103 |
| 交 通1 | 山陰本線鳥取駅 徒歩4分 |
| 交 通2 | - |
| 賃料 | |
|---|---|
| 賃 料 | 賃料未定 |
| 敷 金 |
12ヶ月 |
| その他 | |
|---|---|
| 備考 | ■駐車場は機械式。月額23,100円(税込)/台 ■利用時間制限あり(正面玄関)通用口は所定の操作で出入可能。 |
| 建物 | |
|---|---|
| 建物構造 | 鉄骨鉄筋コンクリート造 |
| 建物階建て |
地上7階 |
| 施工年月 | 1983(昭和58)年 10月 |
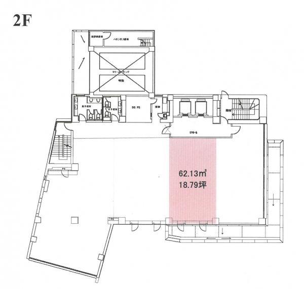
| 募集物件の階数 | 地上 2階 2号室 |
| 契約面積 | 62.13m2(18.79坪) |
| 専用使用面積 | 62.13m2(18.79坪) |
| 用途地域 | 商業地域 |
| 設備 | |
|---|---|
| 水道 | 公営 |
| 下水道 | 公共下水 |
| エレベータ | 有/2基 |
| エアコン | 有 |
| トイレ | 有/共用 |
| 給湯室 | 有/共用 |
| キッチン | 有/共用 |
| 床仕様 | タイルカーペット |
| セキュリティ | 機械警備 |
| 利用時間 | 時間制限有 |
| 照明設備 | 有 |
| 内装業者指定 | 有 |
| 駐車場 | |
|---|---|
| 状 況 | 空有 |
| 駐車料金 | 23,100円(税込) |
| 取引情報 | |
|---|---|
| 取引態様 | 媒介 |
| 客付 | 不可 |
この物件をチェックした人はこんな物件も見ています
- 敷地面積 約68坪!(建物約9坪の前後に駐車可能スペースあり) 【 1F 】倉庫 ・ 【 2F 】事務所

鳥取県鳥取市寿町-103-1
58.32m2(17.64坪)
132,000円(税込)
- 値下げしました♪駐車場は共同利用となります。 中はスケルトンの倉庫です♪

鳥取県鳥取市湖山町東2-162
131.60m2(39.81坪)
99,000円(税込)
- 事務所付き倉庫です♪旧石材店でした!

鳥取県鳥取市吉成-770-24
66.50m2(20.12坪)
93,500円(税込)
- 平成23年日本建築士会連合会賞 優秀賞受賞のビル3Fスペースです。現在はギャラリーとして展開中。洗練された空間です。

鳥取県鳥取市元魚町1-212
63.74m2(19.28坪)
77,000円(税込)
- 現在レンタルスペースとして使用中です。近隣に駐車場1台あり月額11,000円。wifi、ガス、水道料金は共益費に含む。

鳥取県鳥取市末広温泉町-272
34m2(10.29坪)
66,000円(税込)
今日チェックした物件
お急ぎの方はお電話からお気軽にどうぞ!
0857-25-5351 営業時間 / 10:00~17:00 定休日 / 水曜日、日曜日


0857-25-5351



















0857-25-5351