情報更新日:2025年12月22日/広告有効期限:なし
表示閲覧回数(過去30日間):93
お急ぎの方はお電話からお気軽にどうぞ!
0857-25-5351 営業時間 / 10:00~17:00 定休日 / 水曜日、日曜日
>物件詳細情報
| 基本情報 | |
|---|---|
| 物件番号 | 10007805780 |
| 店舗形態 | 事務所, 店舗 |
| オススメ業種 | 塾・学校・教育関係, 事務所, 物販関係 |
| 物件名 | 【今町】アクティ日ノ丸総本社ビル 703号室 |
| 物件の状態 | 空き |
| 引越し時期 | 相談 |
| 契約形態と期間 |
普通契約期間:3年間 |
| 所在地・交通 | |
|---|---|
| 所在地 | 鳥取県鳥取市今町2-112 |
| 交 通1 | 山陰本線鳥取駅 徒歩2分 |
| 交 通2 | - |
| 賃料 | |
|---|---|
| 賃 料 | 753,280円(税込) |
| 敷 金 |
12ヶ月 |
| 共益費・管理費 | 282,480円(税込) |
| その他 | |
|---|---|
| 備考 | ■共益費は共用部分の電気・上下水道料金・清掃費用及び各室機械警備費用を含む■原則24時間貸室内の使用可能、但し夜間早朝はビルの出入り口制限有■駐車場は道路向かい立体駐車場等別契約■借家人賠償保険任意■仲介手数料:賃料の1.1ヶ月分(内税) |
| 建物 | |
|---|---|
| 建物構造 | 鉄骨鉄筋コンクリート造 |
| 建物階建て |
地上8階 地下1階 |
| 施工年月 | 1988(昭和63)年 02月 |
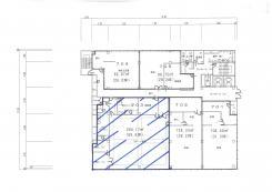
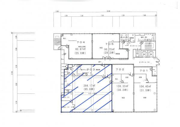
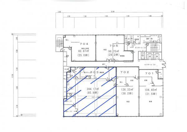
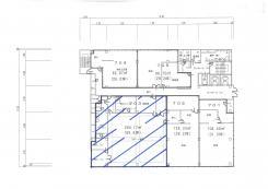
| 募集物件の階数 | 地上 7階 703号室 |
| 契約面積 | 283.23m2(85.68坪) |
| 分割利用 | 可 |
| 専用使用面積 | 283.23m2(85.68坪) |
| 用途地域 | 商業地域 |
| 設備 | |
|---|---|
| 水道 | 公営 |
| 下水道 | 公共下水 |
| エレベータ | 有/3基以上 |
| エアコン | 有 |
| トイレ | 有/共用 |
| 給湯室 | 有/共用 |
| キッチン | 有/共用 |
| ネット環境 | 有 |
| セキュリティ | 機械警備 |
| 利用時間 | 24時間 |
| 照明設備 | 有 |
| 駐車場 | |
|---|---|
| 状 況 | 近隣 |
| 取引情報 | |
|---|---|
| 取引態様 | 媒介 |
| 客付 | 不可 |
この物件をチェックした人はこんな物件も見ています
- 値下げしました♪本通沿い10階建マンション1Fテナント! スケルトン貸しとなります。

鳥取県鳥取市弥生町-223
103.36m2(31.27坪)
156,400円(税込)
- 【値下げしました!】弥生町1Fスナック跡!指定酒販店より酒類購入契約の場合は家賃Down!室料49,500円(税込)+水道料3,300円(税込)です♪

鳥取県鳥取市弥生町-290
20.40m2(6.17坪)
82,500円(税込)
- 値下げしました♪本通り沿いのテナントビル3Fです。

鳥取県鳥取市弥生町-225
42.26m2(12.78坪)
44,000円(税込)
- 鳥取駅徒歩3分の角地にある目立つ立地の物件です♪ 物販店向き

鳥取県鳥取市瓦町-507
50m2(15.13坪)
110,000円(税込)
- ☆静寂性、セキュリティを兼ね備えた月額制の完全個室(利用時間:24時間・ 365日)契約者様はコワーキングスペースも無料で利用が可能

鳥取県鳥取市湖山町北2-201
6m2(1.82坪)
38,500円(税込)
今日チェックした物件
お急ぎの方はお電話からお気軽にどうぞ!
0857-25-5351 営業時間 / 10:00~17:00 定休日 / 水曜日、日曜日


0857-25-5351



















0857-25-5351