情報更新日:2026年03月06日/広告有効期限:なし
表示閲覧回数(過去30日間):71
お急ぎの方はお電話からお気軽にどうぞ!
0857-25-5351 営業時間 / 10:00~17:00 定休日 / 水曜日、日曜日
>物件詳細情報
| 基本情報 | |
|---|---|
| 物件番号 | 10007805883 |
| 店舗形態 | 店舗, 事務所 |
| オススメ業種 | 美容関係, 物販関係, 事務所, サービス業 |
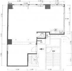
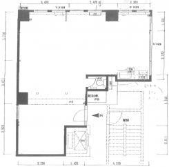
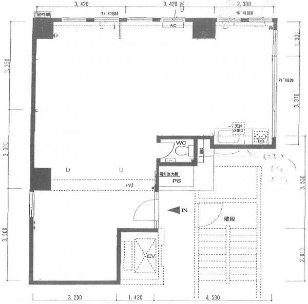
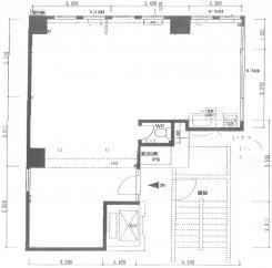
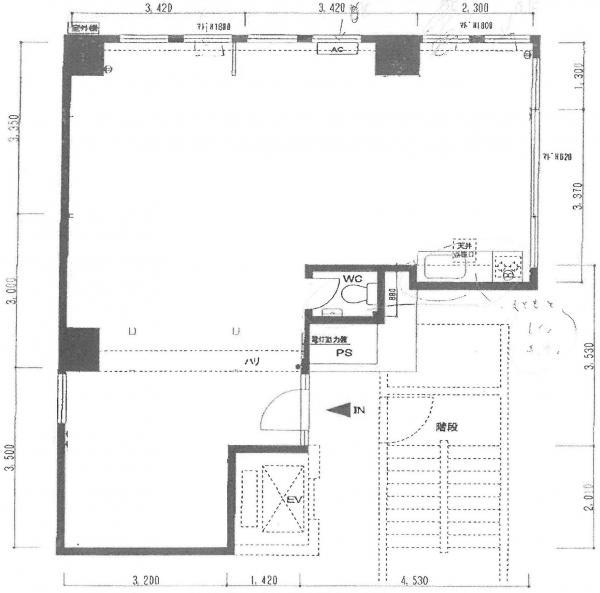
| 物件名 | 【弥生町】グランドール若桜 2-1号室 |
| 物件の状態 | 空き |
| 引越し時期 | 即 |
| 契約形態と期間 |
普通契約期間:2年間 |
| 所在地・交通 | |
|---|---|
| 所在地 | 鳥取県鳥取市弥生町-223 |
| 交 通1 | 山陰本線鳥取駅 徒歩7分 |
| 交 通2 | - |
| 賃料 | |
|---|---|
| 賃 料 | 104,500円(税込) |
| 敷 金 |
3ヶ月 |
| 精算方法 | 実費 |
| 礼 金 | 1ヶ月 |
| その他 | |
|---|---|
| 備考 | ■保証会社加入要 初回保証料:賃料の100%、更新保証料:賃料の10,000円/年 ■借家人賠償保険加入要 ■仲介手数料:賃料の1.1ヶ月分(内税) |
| 建物 | |
|---|---|
| 建物構造 | 鉄骨鉄筋コンクリート造 |
| 建物階建て |
地上10階 |
| 施工年月 | 1989(平成元年)年 03月 |
| 募集物件の階数 | 地上 2階 A号室 |
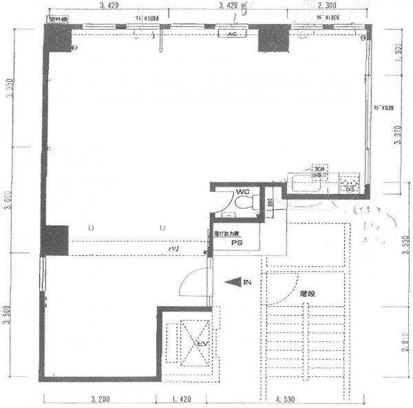
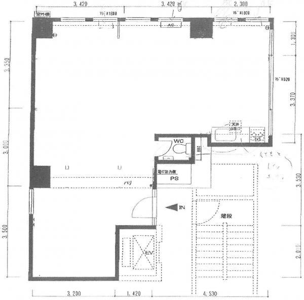
| 契約面積 | 70.15m2(21.22坪) |
| 専用使用面積 | 70.15m2(21.22坪) |
| 用途地域 | 商業地域 |
| 設備 | |
|---|---|
| 水道 | 公営 |
| 下水道 | 公共下水 |
| ガス | その他 |
| エレベータ | 有 |
| エアコン | 有 |
| トイレ | 有/専用 |
| 給湯室 | 無 |
| キッチン | 有/専用 |
| ネット環境 | 無 |
| 床仕様 | CFシート |
| セキュリティ | 無 |
| 利用時間 | 時間制限有 |
| シャッター | 無 |
| 照明設備 | 無 |
| 内装業者指定 | 無 |
| 駐車場 | |
|---|---|
| 状 況 | 無し |
| 取引情報 | |
|---|---|
| 取引態様 | 代理 |
| 客付 | 可 |
この物件をチェックした人はこんな物件も見ています
- 【駐車場2台確保予定(近隣)】住宅街の一角のテナントです。(水道料は業種により変動あり)

鳥取県鳥取市南町-507
52.40m2(15.85坪)
88,000円(税込)
- 値下げしました♪本通沿い10階建マンション1Fテナント! スケルトン貸しとなります。

鳥取県鳥取市弥生町-223
103.36m2(31.27坪)
156,400円(税込)
- 値下げしました! マンション1F店舗!以前はコンビニでした♪倉庫付きの店舗♪ 店舗部分55.16㎡(16.68坪)、倉庫部分3.73㎡(1.12坪)

鳥取県鳥取市南町-525-102
58.89m2(17.81坪)
88,000円(税込)
- 平成23年日本建築士会連合会賞 優秀賞受賞のビル3Fスペースです。現在はギャラリーとして展開中。洗練された空間です。

鳥取県鳥取市元魚町1-212
63.74m2(19.28坪)
77,000円(税込)
- 24時間出し入れ可能なレンタルBOXです!レジャー用品、使用しない家具の収納にお使い下さい!

鳥取県鳥取市山城町-328
4.21m2(1.27坪)
10,450円(税込)
今日チェックした物件
- 24時間出し入れOK!押し入れ代わりにレジャー用品、タイヤ、家具等収納ください!
-

鳥取県鳥取市安長-82-1
3.24m2(0.98坪)
9,900円(税込)
- 24時間出し入れOK!押し入れ代わりにレジャー用品、タイヤ、家具等収納ください!
-

鳥取県鳥取市安長-82-1
3.92m2(1.19坪)
10,450円(税込)
- 24時間出し入れ可能なレンタルBOX!約1.9帖の広さ♪
-

鳥取県鳥取市行徳1-421.423
3.23m2(0.98坪)
8,800円(税込)
- 2026年4月~共用部大幅リニューアル予定!元魚町オフィスビル!4階62坪のオフィスです!照明、エアコン完備しております。
-

鳥取県鳥取市元魚町2-201
205.92m2(62.29坪)
311,450円(税込)
- 2022年10月改装☆日進小学校前のテナントビル1Fの屋根付きトランクルームです☆
-

鳥取県鳥取市吉方温泉1-539
2.10m2(0.64坪)
4,950円(税込)
お急ぎの方はお電話からお気軽にどうぞ!
0857-25-5351 営業時間 / 10:00~17:00 定休日 / 水曜日、日曜日


0857-25-5351



















0857-25-5351