情報更新日:2025年12月09日/広告有効期限:なし
表示閲覧回数(過去30日間):175
お急ぎの方はお電話からお気軽にどうぞ!
0857-25-5351 営業時間 / 10:00~17:00 定休日 / 水曜日、日曜日
>物件詳細情報
| 基本情報 | |
|---|---|
| 物件番号 | 10007806290 |
| 店舗形態 | 店舗, 路面店舗, 事務所, ロードサイド |
| オススメ業種 | 塾・学校・教育関係, 物販関係, 美容関係, 事務所 |
| 物件名 | 【今町】矢谷ビル 1F手前 |
| 物件の状態 | 空き |
| 引越し時期 | 即 |
| 契約形態と期間 |
普通契約期間:2年間 |
| 所在地・交通 | |
|---|---|
| 所在地 | 鳥取県鳥取市今町2-285 |
| 交 通1 | 山陰本線鳥取駅 徒歩6分 |
| 交 通2 | - |
| 賃料 | |
|---|---|
| 賃 料 | 242,000円(税込) |
| 敷 金 |
3ヶ月 |
| 共益費・管理費 | 3,300円(税込) |
| 礼 金 | 1ヶ月 |
| その他 | |
|---|---|
| 備考 | ■保証会社加入要 初回保証料:賃料の100%、更新保証料:賃料の10%/年 ■借家人賠償保険加入要 ■仲介手数料:賃料1.1ヶ月分(税込) |
| 建物 | |
|---|---|
| 建物構造 | 鉄骨鉄筋コンクリート造 |
| 建物階建て |
地上3階 |
| 施工年月 | 1979(昭和54)年 04月 |
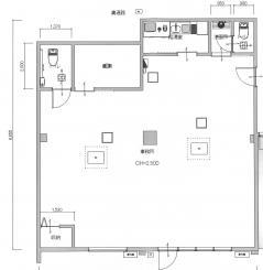
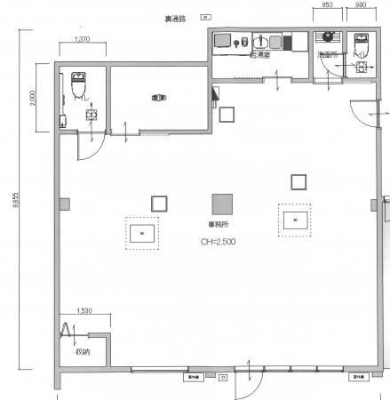
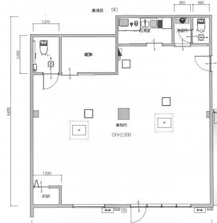
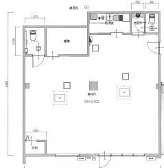
| 募集物件の階数 | 地上 1階 手前号室 |
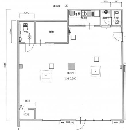
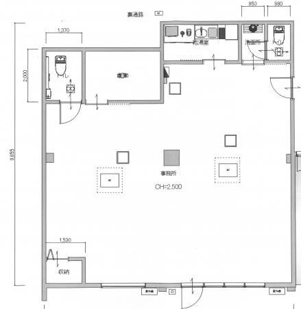
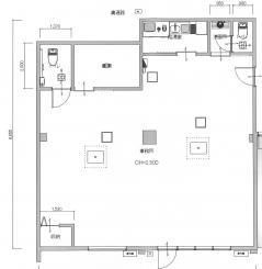
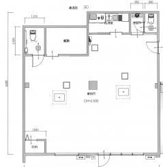
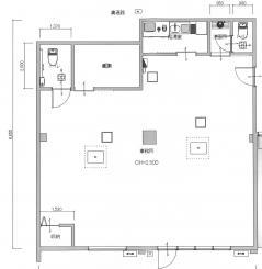
| 契約面積 | 89m2(26.92坪) |
| 専用使用面積 | 89m2(26.92坪) |
| 用途地域 | 商業地域 |
| 設備 | |
|---|---|
| 水道 | 公営 |
| 下水道 | 公共下水 |
| エレベータ | 無 |
| エアコン | 有り/個別 |
| トイレ | 有/専用 |
| 給湯室 | 有/専用 |
| キッチン | 有/専用 |
| ネット環境 | 無 |
| 床仕様 | CFシート |
| セキュリティ | 無 |
| 利用時間 | 24時間 |
| シャッター | 無 |
| 照明設備 | 有 |
| 内装業者指定 | 無 |
| 駐車場 | |
|---|---|
| 状 況 | 無し |
| 取引情報 | |
|---|---|
| 取引態様 | 代理 |
| 客付 | 不可 |
この物件をチェックした人はこんな物件も見ています
- 敷地面積 約68坪!(建物約9坪の前後に駐車可能スペースあり) 【 1F 】倉庫 ・ 【 2F 】事務所

鳥取県鳥取市寿町-103-1
58.32m2(17.64坪)
132,000円(税込)
- 値下げしました♪駐車場は共同利用となります。 中はスケルトンの倉庫です♪

鳥取県鳥取市湖山町東2-162
131.60m2(39.81坪)
99,000円(税込)
- 事務所付き倉庫です♪旧石材店でした!

鳥取県鳥取市吉成-770-24
66.50m2(20.12坪)
93,500円(税込)
- 鳥取駅徒歩7分、富安2丁目の約47坪の事務所テナントです。駐車場は区画前3台程度(車種制限有)男女トイレ別!

鳥取県鳥取市富安2-43
156.39m2(47.31坪)
330,000円(税込)
- 以前は飲食店のテナントでした!駐車場5台分あり!(賃料に含む。普通車4台、軽自動車1台)

鳥取県鳥取市西品治-621-4
68.20m2(20.63坪)
132,000円(税込)
今日チェックした物件
お急ぎの方はお電話からお気軽にどうぞ!
0857-25-5351 営業時間 / 10:00~17:00 定休日 / 水曜日、日曜日


0857-25-5351


















0857-25-5351