情報更新日:2026年04月17日/広告有効期限:なし
表示閲覧回数(過去30日間):141
お急ぎの方はお電話からお気軽にどうぞ!
0857-25-5351 営業時間 / 10:00~17:00 定休日 / 水曜日、日曜日
>物件詳細情報
| 基本情報 | |
|---|---|
| 物件番号 | 10007806381 |
| 店舗形態 | 事務所 |
| オススメ業種 | 事務所, 塾・学校・教育関係 |
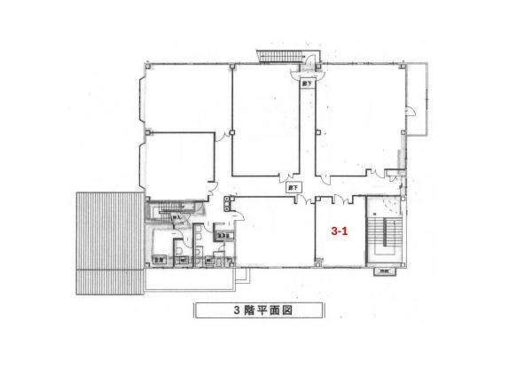
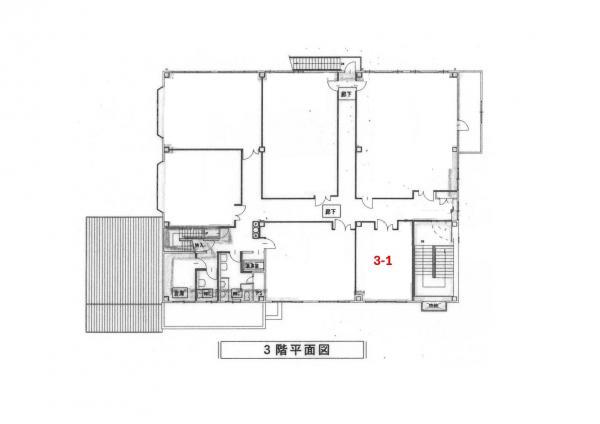
| 物件名 | 【南吉方】エステートビルⅡ 3-1号室 |
| 物件の状態 | 入居中 |
| 引越し時期 | 2026(令和8)年08月上旬 |
| 契約形態と期間 |
普通契約期間:2年間 |
| 所在地・交通 | |
|---|---|
| 所在地 | 鳥取県鳥取市南吉方1-114-3 |
| 交 通1 | 山陰本線鳥取駅 徒歩15分 |
| 交 通2 | - |
| 賃料 | |
|---|---|
| 賃 料 | 38,500円(税込) |
| 敷 金 |
3ヶ月 |
| 共益費・管理費 | 6,600円(税込) |
| その他月額費用 1 | 警備料 5,500円(税込) |
| 精算方法 | 実費 |
| 礼 金 | 1ヶ月 |
| その他 | |
|---|---|
| 備考 | ■保証会社加入要 初回保証料:賃料の100%、更新保証料:10,000円/年 ■借家人賠償保険加入要 ■館内規約あり■敷地内駐車場無 |
| 建物 | |
|---|---|
| 建物構造 | 鉄骨造 |
| 建物階建て |
地上4階 |
| 施工年月 | 1981(昭和56)年 12月 |
| 募集物件の階数 | 地上 3階 3-1号室 |
| 契約面積 | 27.90m2(8.44坪) |
| 専用使用面積 | 27.90m2(8.44坪) |
| 用途地域 | 準工業 |
| 設備 | |
|---|---|
| 水道 | 公営 |
| 下水道 | 公共下水 |
| ガス | その他 |
| エレベータ | 無 |
| エアコン | 有 |
| トイレ | 有/共用 |
| 給湯室 | 有/共用 |
| キッチン | 有/共用 |
| ネット環境 | 無 |
| 床仕様 | Pタイル |
| セキュリティ | 機械警備 |
| 利用時間 | 時間制限有 |
| シャッター | 無 |
| 照明設備 | 有 |
| 内装業者指定 | 無 |
| 駐車場 | |
|---|---|
| 状 況 | 無し |
| 取引情報 | |
|---|---|
| 取引態様 | 貸主 |
| 客付 | 可 |
この物件をチェックした人はこんな物件も見ています
- 湖山駅前通り&湖山街道に面した好立地♪

鳥取県鳥取市湖山町東1-403
33.32m2(10.08坪)
80,300円(税込)
- 湖山駅前通り&湖山街道に面した好立地♪

鳥取県鳥取市湖山町東1-403
33.32m2(10.08坪)
73,700円(税込)
- 湖山駅前通り&湖山街道に面した好立地♪

鳥取県鳥取市湖山町東1-403
33.32m2(10.08坪)
80,300円(税込)
- 湖山駅前通り&湖山街道に面した好立地♪

鳥取県鳥取市湖山町東1-403
33.32m2(10.08坪)
80,300円(税込)
- 値下げしました♪駐車場は共同利用となります。 中はスケルトンの倉庫です♪

鳥取県鳥取市湖山町東2-162
131.60m2(39.81坪)
99,000円(税込)
今日チェックした物件
お急ぎの方はお電話からお気軽にどうぞ!
0857-25-5351 営業時間 / 10:00~17:00 定休日 / 水曜日、日曜日


0857-25-5351



















0857-25-5351