情報更新日:2026年05月21日/広告有効期限:なし
表示閲覧回数(過去30日間):44
お急ぎの方はお電話からお気軽にどうぞ!
0857-25-5351 営業時間 / 10:00~17:00 定休日 / 水曜日、日曜日
>物件詳細情報
| 基本情報 | |
|---|---|
| 物件番号 | 10007805098 |
| 店舗形態 | 事務所, 店舗 |
| オススメ業種 | 事務所, 美容関係, 物販関係, 塾・学校・教育関係 |
| 物件名 | 【今町】小谷ビル2F |
| 物件の状態 | 空き |
| 引越し時期 | 即 |
| 契約形態と期間 |
普通契約期間:2年間 |
| 所在地・交通 | |
|---|---|
| 所在地 | 鳥取県鳥取市今町1-123 |
| 交 通1 | 山陰本線鳥取駅 徒歩4分 |
| 交 通2 | - |
| 賃料 | |
|---|---|
| 賃 料 | 121,000円(税込) |
| 敷 金 |
5ヶ月 |
| 精算方法 | 実費 |
| 礼 金 | 1ヶ月 |
| その他 | |
|---|---|
| 備考 | ■保証会社加入要 初回保証料:賃料の100%、更新保証料:賃料の10%/年 ■借家人賠償保険加入要 ■仲介手数料:賃料1.1ヶ月分(税込) |
| 建物 | |
|---|---|
| 建物構造 | 鉄骨造 |
| 建物階建て |
地上3階 |
| 施工年月 | 1995(平成7)年 04月 |
| 募集物件の階数 | 地上 2階 |
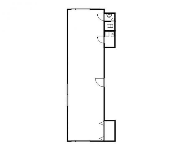
| 契約面積 | 66.85m2(20.22坪) |
| 用途地域 | 商業地域 |
| 設備 | |
|---|---|
| 水道 | 公営 |
| 下水道 | 公共下水 |
| ガス | 都市ガス |
| エレベータ | 無 |
| エアコン | 無 |
| トイレ | 有/専用 |
| 給湯室 | 無 |
| キッチン | 有/専用 |
| ネット環境 | 無 |
| 床仕様 | CFシート |
| セキュリティ | 無 |
| 利用時間 | 24時間 |
| シャッター | 無 |
| 照明設備 | 有 |
| 内装業者指定 | 無 |
| 駐車場 | |
|---|---|
| 状 況 | 無し |
| 取引情報 | |
|---|---|
| 取引態様 | 代理 |
| 客付 | 可 |
この物件をチェックした人はこんな物件も見ています
- 値下げしました♪駐車場は共同利用となります。 中はスケルトンの倉庫です♪

鳥取県鳥取市湖山町東2-162
131.60m2(39.81坪)
99,000円(税込)
- 鳥取大学周辺の居酒屋跡の飲食店です♪

鳥取県鳥取市湖山町北2-238-2
47.48m2(14.36坪)
110,000円(税込)
- 鳥取市の繁華街の一画です。(警備料、ごみ収集費用は賃料に含む) ■深夜営業NG(24:00まで)

鳥取県鳥取市末広温泉町-158
44.52m2(13.47坪)
72,000円(税込)
- 鳥取市の繁華街の一画です。(警備料、ごみ収集費用は賃料に含む) ■深夜営業NG(24:00まで)

鳥取県鳥取市末広温泉町-158
47.12m2(14.25坪)
74,000円(税込)
- JA会館横の約11坪の隠れ家的な店舗です!1Fと2F一部をリフォームいたしました♪ 冷蔵庫、製氷機を貸出し対応いたします!(指定酒店と酒類購入契約が条件です)

鳥取県鳥取市末広温泉町-713
33m2(9.98坪)
71,500円(税込)
今日チェックした物件
お急ぎの方はお電話からお気軽にどうぞ!
0857-25-5351 営業時間 / 10:00~17:00 定休日 / 水曜日、日曜日


0857-25-5351


















0857-25-5351