情報更新日:2025年10月13日/広告有効期限:なし
表示閲覧回数(過去30日間):101
お急ぎの方はお電話からお気軽にどうぞ!
0857-25-5351 営業時間 / 10:00~17:00 定休日 / 水曜日、日曜日
>物件詳細情報
| 基本情報 | |
|---|---|
| 物件番号 | 10007806232 |
| 店舗形態 | 店舗 |
| オススメ業種 | 物販関係, 美容関係 |
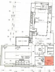
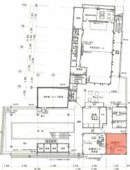
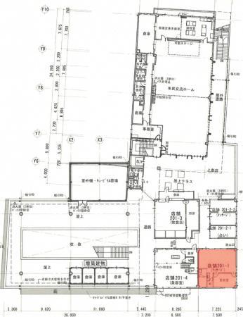
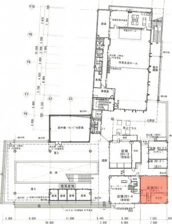
| 物件名 | 【弥生町】パレットとっとり 201-1号室 |
| 物件の状態 | 空き |
| 引越し時期 | 即 |
| 契約形態と期間 |
普通契約期間:2年間 |
| 所在地・交通 | |
|---|---|
| 所在地 | 鳥取県鳥取市弥生町-323-1 |
| 交 通1 | 山陰本線鳥取駅 徒歩7分 |
| 交 通2 | 日本交通株式会社本通日交ビル前 徒歩1分 |
| 賃料 | |
|---|---|
| 賃 料 | 82,500円(税込) |
| 敷 金 |
5ヶ月 |
| 共益費・管理費 | 22,000円(税込) |
| その他月額費用 1 | テナント会費 6,000円(税込) |
| その他 | |
|---|---|
| 備考 | ■借家人賠償保険加入要 ■保証会社加入相談要 ■専有区画の電気ガス水道料は個別請求 ■警備料、共用部諸費用は共益費にて徴収(変動有) ■開館時間9:00~23:00 ■駐車場についてはお問い合わせください。 ■エアコン2台は残置物扱いです。 |
| 建物 | |
|---|---|
| 建物構造 | 鉄骨造 |
| 建物階建て |
地上2階 |
| 施工年月 | 2005(平成17)年 03月 |
| 募集物件の階数 | 地上 2階 201-1号室 |
| 契約面積 | 57.40m2(17.36坪) |
| 専用使用面積 | 57.40m2(17.36坪) |
| 用途地域 | 商業地域 |
| 設備 | |
|---|---|
| 水道 | 公営 |
| 下水道 | 公共下水 |
| ガス | 都市ガス |
| エレベータ | 有 |
| エアコン | 無 |
| トイレ | 有/共用 |
| 給湯室 | 無 |
| キッチン | 有/専用 |
| ネット環境 | 無 |
| 床仕様 | スケルトン |
| セキュリティ | 機械警備 |
| 利用時間 | 時間制限有 |
| シャッター | 無 |
| 照明設備 | 有 |
| 内装業者指定 | 無 |
| 駐車場 | |
|---|---|
| 状 況 | 空有 |
| 取引情報 | |
|---|---|
| 取引態様 | 媒介 |
| 客付 | 不可 |
この物件をチェックした人はこんな物件も見ています
- 2023.10月にエアコン新設・トイレ洋式新品・床張り替え致しました♪末広通りバス停目の前です!/台)

鳥取県鳥取市末広温泉町-159-8
37.80m2(11.43坪)
38,500円(税込)
- 事務所におススメです♪駐車場2台は家賃込みです!(3台目以降:3,300円/台)

鳥取県鳥取市商栄町-110-4
100m2(30.25坪)
132,000円(税込)
- 吉成消防署の横です。店舗前2台分駐車可能(賃料込み)

鳥取県鳥取市吉成-639-10
77.70m2(23.50坪)
121,000円(税込)
- 24時間出し入れOK!押し入れ代わりにレジャー用品、タイヤ、家具等収納ください!

鳥取県鳥取市安長-82-1
3.24m2(0.98坪)
8,250円(税込)
- 2F事務所の1区画賃貸です。水道料、ガス代は共益費に含む。

鳥取県鳥取市南安長1-2-18
38.71m2(11.71坪)
48,400円(税込)
今日チェックした物件
お急ぎの方はお電話からお気軽にどうぞ!
0857-25-5351 営業時間 / 10:00~17:00 定休日 / 水曜日、日曜日


0857-25-5351



















0857-25-5351